Définition: La notion de continuité de la rivière, ou continuité écologique, figure à l’annexe V de la Directive cadre sur l’eau (DCE), comme un élément contribuant au bon état écologique des cours d’eau. la continuité écologique, pour les milieux aquatiques, se définit par la circulation des espèces et le bon déroulement du transport des sédiments. Elle a une dimension amont-aval, impactée par les ouvrages transversaux comme les seuils et barrages.
Moulin de Kerhé
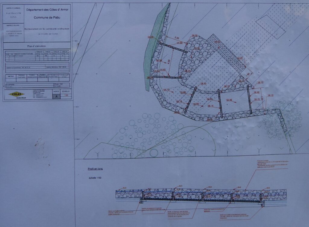
Dans le cadre de la continuité écologique sur le Trieux, le déversoir du moulin de Kerhé situé sur la commune de Pabu va être aménagé d’une passe à poissons. Cette passe sera constituée de 5 bassins qui permettront à l’ensemble des poissons qui fréquentent le Trieux de pouvoir remonter et descendre cet obstacle. Les travaux commenceront à partir du 13 octobre 2025. Le camping fermera ses portes afin que les engins de chantier puissent s’installer. C’est avec un certain intérêt que nous suivrons l’avancement des travaux et nous vous en informerons.
Passe Poisson
A ce jour, 3 projets sont en cours sur le Trieux, dont 2 sur la partie dont dépend notre AAPPMA. Nous ne donnons pas plus de précision car pour 2 projets les négociations sont en cours. Pour le 3eme , on attend le début des travaux qui aurait du commencer en 2024, mais qui faute de budget ne démarreront qu’en 2025. Sachez que votre AAPPMA est partie prenante financièrement sur ce 3eme projet.
Aménagements
Explications
Moulin de Kerhé
Les travaux sur le déversoir du moulin de Kerhé ont enfin commencés ce 13 octobre 2025. Ils devraient se terminer fin octobre. La première semaine est déjà écoulée. Toutes les vannes du moulin ont été levées afin de permettre au niveau d’eau de baisser. Le batardeau est installé mais ne donne pas entière satisfaction sur son étanchéité. Les arbres au fond du déversoir ont été abattus. Les travaux de démolition du déversoir devrait commencer la semaine prochaine à l’endroit où sera construite la passe à poisson. Espérons que les travaux ne seront pas retardés par les pluies annoncées fin de semaine et la semaine prochaine avec une montée des eaux trop importante. Nous ne manquerons pas de vous informer sur l’avancement des travaux.










La 2eme semaine : en ce début de semaine les travaux ont bien avancés, malheureusement contrariés par les pluies tombées dans la nuit de mercredi à jeudi, mettant un coup d’arrêt aux travaux en balayant le matériel installé. D’autre pluies sont annoncées. A suivre. Ci-joint quelques photos avant la pluie et après.




La 3eme semaine de travaux commence, contrarié par les pluies de la semaine dernière, les travaux ont repris. La passe commence a prendre forme. Le béton de la passe est doté d’un parement en pierre ce qui rend l’ensemble assez naturel et beaucoup plus joli qu’un ensemble de béton brut.




Vendredi 31 octobre, fin de la 3eme semaine de travaux. le chantier avance bien. ci-joint les 3 dernières photos du chantier. La passe prend vraiment forme et s’inscrit bien dans le paysage avec ces gros bloc de pierres.



Vendredi 7 novembre, fin de la 4eme semaine de travaux sur le déversoir. Mardi 4, les travaux entrent dans leur phase finale. Mercredi 5, la passe à poissons est terminée. Le 6, les ouvriers commencent la passe à canoé kayak comme indiquée sur le plan. Le 7 novembre la passe à canoé est terminée et la passe à poissons est fonctionnelle. Les engins ont enlevés les big(s) bag ce qui permet d’alimenter la passe à poissons. Le projet devrait se terminer la semaine prochaine avec la fermeture de l’ancienne passe à canoé que l’on peut voir à gauche de la nouvelle passe et qui servait jusqu’à présent de passe à poissons. Dorénavant les poissons n’auront plus à franchir cette marche qui était très compliqué par eaux basses. Une fois cette passe bouchée, il restera à fermer les vannes du moulin et le niveau d’eau pourra de nouveau montée et franchir le déversoir. Il était temps car à la mi-novembre, les saumons ,truites et truites de mer attendent le premier coup d’eau pour monter.








Vendredi 14 novembre, les travaux se terminent. le tracto pelle remet la berge en état. le béton va sécher ce week end et ensuite il restera les vannes à fermer ( a gauche sur les photos). le chantier aura duré 1 mois. Il était temps car le niveau d’eau monte chaque semaine un peu plus.


Lundi 17 novembre, les travaux de la passe à poissons sur le déversoir du moulin de Kerhé sont terminés. les engins sont repartis. La vallée retrouve son calme. Les vannes du moulin ont été abaissées ce qui permet au niveau d’eau de passer de nouveau par dessus le déversoir. Les saumons et les truites vont pouvoir franchir cet obstacle sans aucun problème car les pluies de ces derniers jour ont fait montés le niveau d’eau de quelques centimètres.

